Crónica Castilla-La Mancha.

Crónica Castilla-La Mancha.

La Junta otorga contrato para construir el nuevo IES 'Juan Bosco' en Alcázar, con una duración de obra de ocho meses.

La Junta otorga contrato para construir el nuevo IES 'Juan Bosco' en Alcázar, con una duración de obra de ocho meses.

CIUDAD REAL, 18 de agosto.

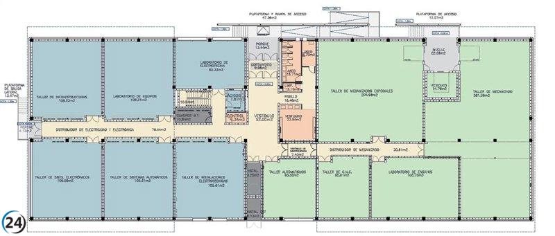
El Gobierno de Castilla-La Mancha ha decidido invertir en el futuro educativo de Alcázar de San Juan al otorgar el contrato para la construcción de un nuevo edificio de talleres en el IES 'Juan Bosco'. La empresa adjudicataria, Gestión y Ejecución de Obra Civil, S.A., llevará a cabo esta obra con un presupuesto de 3.692.157 euros, con un plazo de ejecución establecido en ocho meses.

El delegado de Educación, Cultura y Deportes en Ciudad Real, José Caro, ha subrayado la relevancia de este proyecto, el cual ha sido largamente anticipado por la comunidad educativa. Según sus palabras, esto representa un "hito crucial" en la reforma integral del instituto, además de ser la mayor inversión planificada en centros educativos de la provincia.

El proyecto tiene como objetivo la creación de un edificio moderno y funcional, diseñado para albergar talleres de las disciplinas de electricidad-electrónica y mecanizado. El nuevo espacio contará con accesos cómodos, una estructura de hormigón prefabricado y un diseño que facilitará la evacuación de materiales al área de trabajo, asegurando un entorno adecuado para la formación profesional.

Los ciclos formativos que estarán disponibles en este nuevo edificio incluyen, dentro de la familia de Fabricación Mecánica, el grado medio de 'Mecanizado' y el grado superior en 'Programación de la producción en fabricación mecánica'. Por otro lado, la familia de Electricidad y Electrónica ofrecerá el grado medio en 'Instalaciones de Telecomunicaciones' y 'Instalaciones Eléctricas y Automáticas', junto con dos grados superiores en 'Mantenimiento electrónico' y 'Sistemas electrotécnicos y automatizados'.

Este innovador edificio, que ocupará una superficie de 1.828 metros cuadrados, se construirá en la parte trasera del centro educativo, donde actualmente hay un patio. La financiación se ha programado en dos fases: 731.047 euros serán aportados en este año, y 2.961.110 euros el próximo 2026.

José Caro ha informado que la reforma integral del IES 'Juan Bosco' se llevará a cabo en tres etapas. La primera comprende la construcción de los nuevos talleres; la segunda implicará la modernización del edificio principal, con la incorporación de un nuevo núcleo de comunicación y ampliaciones en el ala oeste; y la tercera fase se centrará en la creación de un pabellón deportivo y la renovación del edificio C.

Finalmente, el delegado provincial ha expresado su agradecimiento a las familias y al personal del instituto por su "paciencia" y "comprensión" ante las dificultades que han surgido durante la ejecución del proyecto, que incluyó la necesidad de rescindir el contrato con la empresa anterior, lo que retrasó el inicio de las obras.